TR / EN

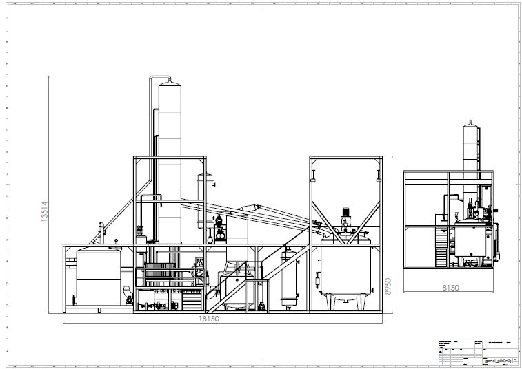
Teknik Çizimler

Tesis Çizimleri:

GÜNLÜK 15 TON DOP VEYA GÜNLÜK 10 TON DOTP KAPASİTELİ ANAHTAR TESLİM ÜRETİM TESİSİ

 

AYLIK 2000 TON KAPASİTELİ ANAHTAR TESLİM DOTP ÜRETİM TESİSİ

 

 

 

AYLIK 1000 TON KAPASİTELİ ANAHTAR TESLİM DOTP ÜRETİM TESİSİ